Top.Mail.Ru
RSS-лента Мастерской Кашлакова. Климатические системы вентиляции и кондиционирования. Подбор и уствновка

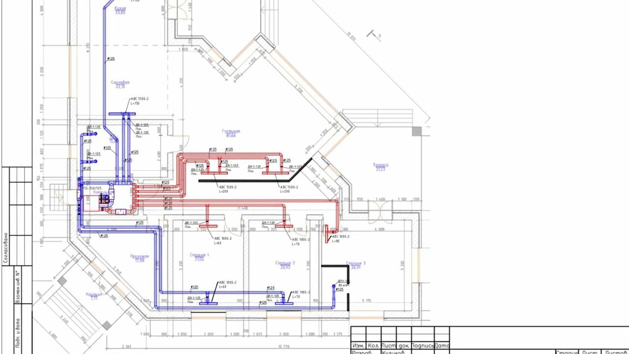
2022г. г.Истра. Разводка системы вентиляции для частного дома

2022г г.Истра. Проект приточно-вытяжная система вентиляции и кондиционирования для частного дома
2022г г.Истра. Проект приточно-вытяжная система вентиляции и кондиционирования для частного дома
2022г г.Истра. Проект приточно-вытяжная система вентиляции и кондиционирования для частного дома
2022г г.Истра. Проект приточно-вытяжная система вентиляции и кондиционирования для частного дома