RSS- лента Мастерской Кашлакова. Обзоры электромонтажных работ, сборка электрощитков.
9 июн. 2023 р-н Замоскворечье. Разводка электрики на мансардном этаже
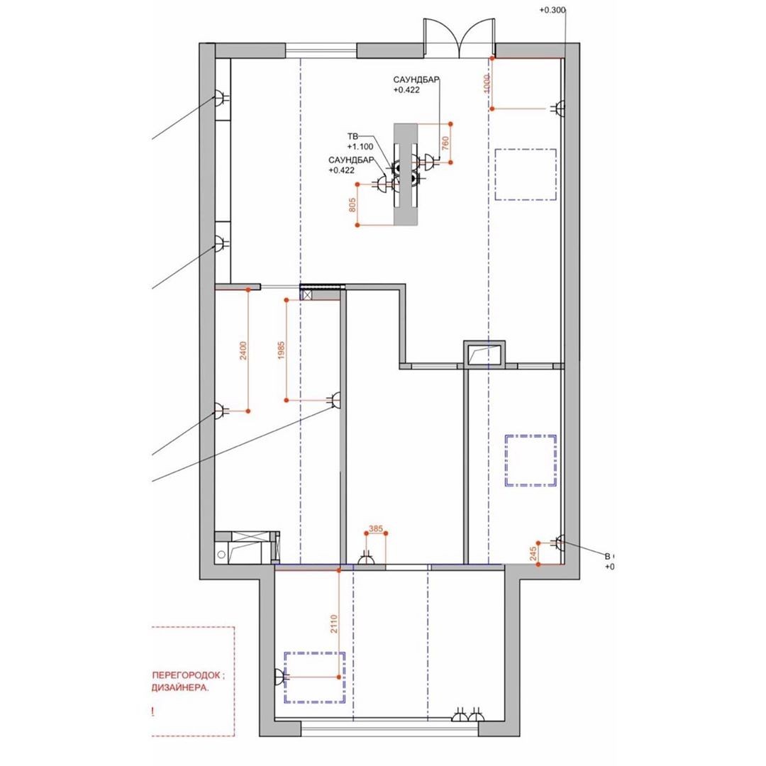
Для клиент били проведены электромонтажные работы на мансардном этаже. Разводка в железной гофре
Мастерская Кашлакова mob.тел. : 8-965-281-95-57 (Москва и область)